[生活资讯] 6月27日起!西岳路全段热力管道施工封闭交通管制,请提前绕行

  [复制链接]

签到天数: 614 天

[LV.9]以坛为家II

分享到:
发表于 2022-6-24 20:38 手机版 | 显示全部楼层 |阅读模式

马上注册荣耀渭南网,结交渭南乡党,享用更多功能,让你轻松玩转荣耀网

您需要 登录 才可以下载或查看,没有账号?立即注册 |

x
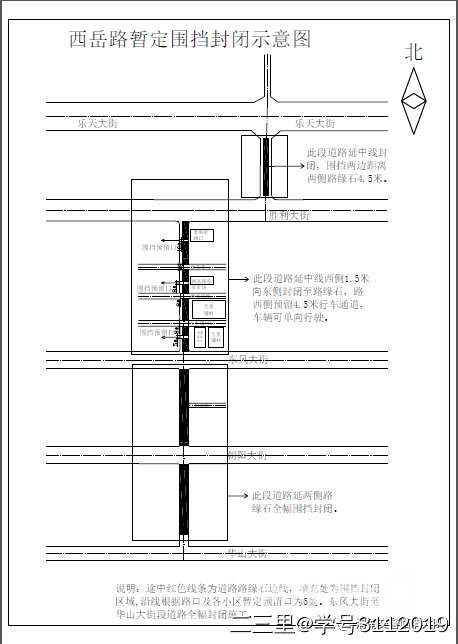
关于对渭南市西岳路全段热力管道施工封闭交通管制的通告


渭南市集中供热项目是市政府2022年确定的十大民生工程之一,确保年底前实现新增供热面积150万平方米。根据工程建设进度,渭南市公安局交通警察支队临渭大队、渭南市热力总公司有限公司决定:利用暑期学生放假时段,从2022年6月27日起至2022年8月27日止,对西岳路(北起渭华大街-南至华山大街)全长3900米进行封闭施工(十字路口除外)。为减少扰民,确保施工安全,现将交通组织限行方案通告如下:

一、西岳路:1、乐天大街至胜利大街段道路中心围挡封闭两个车道,车辆按照指示标牌两侧通行;2、胜利大街至东风大街段东半幅封闭,西半幅允许车辆由北向南单向通行;3、东风大街至华山大街段全幅封闭,禁止通行。

二、施工期间、施工路段禁止停放机动车和非机动车。

三、施工路段东、西两侧人行横道所有停车泊位停止使用,保障行人、非机动车通行。

四、机动车可提前选择相邻的金水路、前进路绕行,避开施工路段。

请广大市民、机动车驾驶人广而告之,根据公告内容和出行需求,提前绕行线路。因施工带来不便,敬请谅解。

特此通告。

渭南市公安局交通警察大队  渭南热力总公司有限公司

2022年6月24日


20220624203634front2_0_113338_Fnwke2pJOpeOiSOVAfI230okNlPv.jpg

20220624203634front2_0_113338_FowJ1idhOuXrqDUUtXWvHq2bALUC.jpg

(来源:渭南市热力公司)


荣耀渭南网---每天我们都在影响这座城市!

签到天数: 29 天

[LV.4]偶尔看看III

发表于 2022-6-24 21:42 手机版 | 显示全部楼层
荣耀渭南网---每天我们都在影响这座城市!

该用户从未签到

发表于 2022-6-24 22:12 手机版 | 显示全部楼层
荣耀渭南网---每天我们都在影响这座城市!

该用户从未签到

发表于 2022-6-24 22:28 手机版 | 显示全部楼层
谢谢提醒发布了。
荣耀渭南网---每天我们都在影响这座城市!
hwa

该用户从未签到

发表于 2022-6-24 23:10 手机版 | 显示全部楼层
注意提前减速慢行
荣耀渭南网---每天我们都在影响这座城市!

签到天数: 685 天

[LV.9]以坛为家II

发表于 2022-6-24 23:12 手机版 | 显示全部楼层
这下又来开挖了
荣耀渭南网---每天我们都在影响这座城市!

该用户从未签到

发表于 2022-6-24 23:19 手机版 | 显示全部楼层
又来了        
荣耀渭南网---每天我们都在影响这座城市!

该用户从未签到

发表于 2022-6-24 23:49 手机版 | 显示全部楼层
又开始了      
荣耀渭南网---每天我们都在影响这座城市!

该用户从未签到

发表于 2022-6-25 00:35 手机版 | 显示全部楼层
荣耀渭南网---每天我们都在影响这座城市!

该用户从未签到

发表于 2022-6-25 06:19 手机版 | 显示全部楼层
荣耀渭南网---每天我们都在影响这座城市!

使用高级回帖 (可批量传图、插入视频等)快速回复

您需要登录后才可以回帖 登录 | 立即注册 |

本版积分规则   Ctrl + Enter 快速发布  

发帖时请遵守我国法律,网站会将有关你发帖内容、时间以及发帖IP地址等记录保留,只要接到合法请求,即会将信息提供给有关政府机构。
返回顶部快速回复返回列表找客服
快速回复 返回顶部 返回列表